direct naar inhoud van 6.1 Landschappelijke inrichting nieuwe bouwkavel
Plan: Buitengebied Holten, agrarisch bouwblok Russendijk
Status: ontwerp
Plantype: bestemmingsplan
IMRO-idn: NL.IMRO.1742.BPB2011002-0301

6.1 Landschappelijke inrichting nieuwe bouwkavel

H.A. ten Have Groen-Adviesbureau in Schalkhaar heeft een plan gemaakt voor de landschappelijke inpassing van het nieuwe bouwblok.

Het plan doet recht aan de omgeving en is in overeenstemming is met het Landschapsontwikkelingsplan (LOP) van de gemeente Rijssen-Holten van december 2007. Het gebied bestaat uit een rationele verkaveling met grote blokvormige kavels tussen wegen en watergangen. Door de geringe aanwezige beplantingen heeft het gebied een grote mate van openheid. Het is een jonge ontginningsvlakte en wordt gerekend tot het matenlandschap (jonge hooilandjes, gescheiden door beplanting van elzenbomen).

Dit gebied is grotendeels aangewezen als landbouw-ontwikkelingsgebied, waarbij het deelgebied Fliermaten in het natuurgebiedsplan is aangewezen als beheersgebied voor weidevogels. De opgave vanuit het LOP is een casco van beplantingen te realiseren om toekomstige ‘rode’ ontwikkelingen te kunnen opvangen. Daartoe wordt het bestaande grid van wegen beplant met rijen essen of populieren. Daarnaast wordt de grote openheid zeer gewaardeerd om een ruimtelijk kader te bieden voor weidevogels.

De voorgestelde landschappelijke inpassing is in overeenstemming met de visie uit het LOP. Om te komen tot een volledige overeenstemming wordt de Russendijk beplant met bomen om een bijdrage te leveren aan de ontwikkeling van een groene casco langs wegen. Hier wordt gekozen voor zomereiken zodat de bestaande bomenrijen worden voortgezet. De buitenranden van de singelbeplanting en het infiltratieveld, aan weerzijde van het bouwblok, inplanten met elzen dat kenmerkend is voor het matenlandschap. De openheid aan de noordzijde van het bouwblok komt ten goede aan weidevogels.

afbeelding "i_NL.IMRO.1742.BPB2011002-0301_0014.jpg"

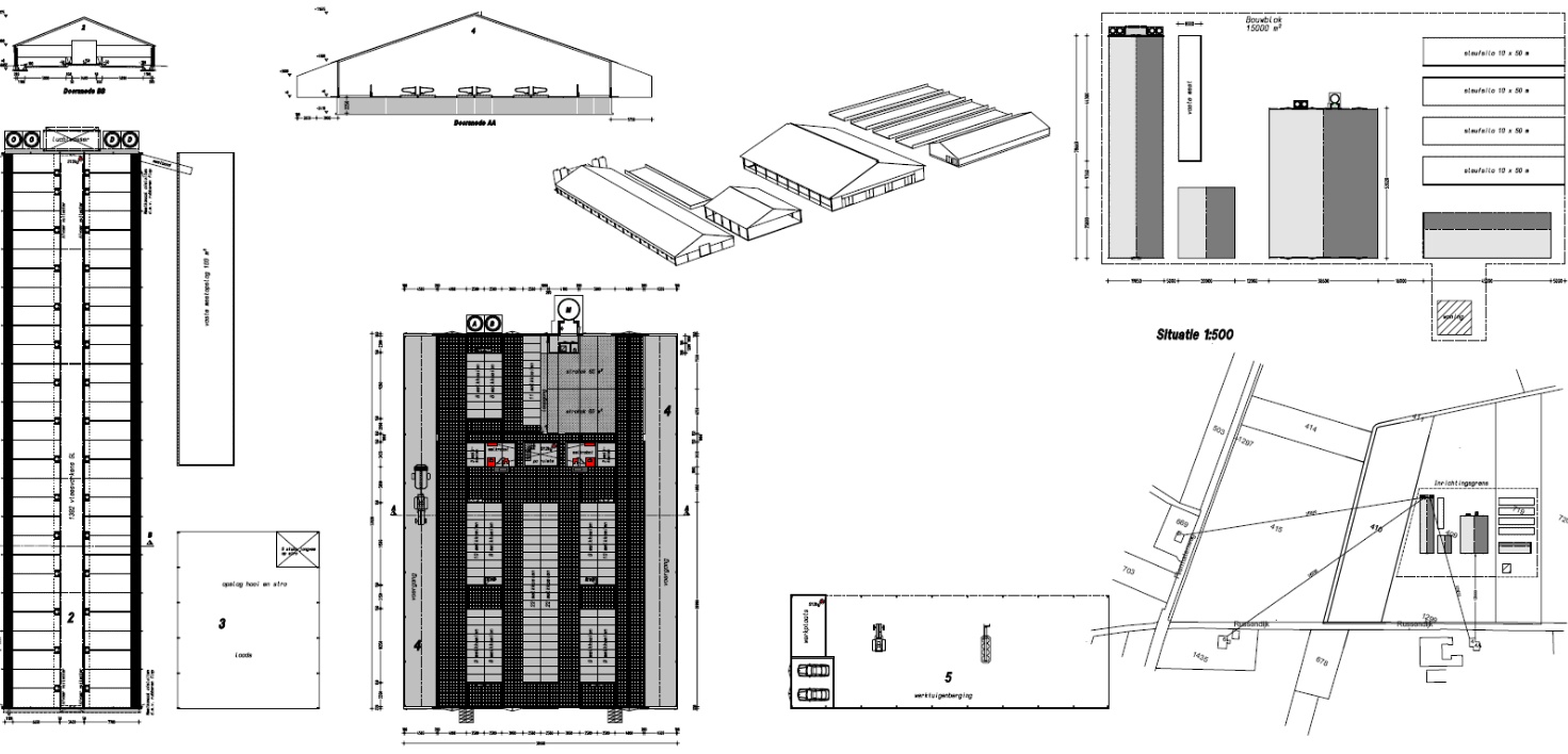
Figuur 6.1. Situatietekening nieuw agrarisch bouwblok Russendijk

afbeelding "i_NL.IMRO.1742.BPB2011002-0301_0015.png"

Figuur 6.2. Landschappelijke inrichting nieuwe bouwkavel